



Want to customise, or have your own designs? No problem, talk to us about pricing a new plan for this package deal.
Seize the opportunity to secure this modern, architecturally designed home in the sought-after Frontier Estate. Lot 69 enjoys a beautiful northern aspect, capturing all-day sunlight and cleverly utilising its slender site with a smart, efficient floor plan. With full flexibility to customise the design to suit your lifestyle, this is your chance to create your dream home with Waikato’s most trusted builders.
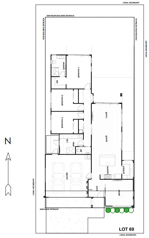
Scullery
Study Nook
Custom designed kitchen
Driveway, Patios and Fencing
Double garage
Open plan living
Open plan kitchen
F&P or BOSCH Appliances
High quality fittings and fixtures
Fully insulated exceeding code requirements
Price shown includes house and land, but is subject to terms, conditions and excludes additional siteworks/foundation costs above standard allowances unless otherwise stated. Images and photos are examples only.

Want to customise, or have your own designs?
No problem, talk to us about pricing a new plan for this package deal
Want to customise, or have your own designs? No problem! Talk to us about pricing a new plan for this package deal.
Priced from
$1,107,000
Show Price
Land area (sqm)
612
Building area (sqm)
182
Bedrooms
3
Bathrooms
2
Garage (cars)
2
Ensuite
Seize the opportunity to secure this modern, architecturally designed home in the sought-after Frontier Estate. Lot 69 enjoys a beautiful northern aspect, capturing all-day sunlight and cleverly utilising its slender site with a smart, efficient floor plan. With full flexibility to customise the design to suit your lifestyle, this is your chance to create your dream home with Waikato’s most trusted builders.
Scullery
Study Nook
Custom designed kitchen
Driveway, Patios and Fencing
Double garage
Open plan living
Open plan kitchen
F&P or BOSCH Appliances
High quality fittings and fixtures
Fully insulated exceeding code requirements
Price shown includes house and land, but is subject to terms, conditions and excludes additional siteworks/foundation costs above standard allowances unless otherwise stated. Images and photos are examples only.
Reference #
SH440
/
Ryan Fleetwood
027 636 6259Cambridge
503
m2
4
$1,089,000
Show Price
Waihi Beach
404
m2
4
$1,460,000
Show Price
Let’s get together for a free, no-pressure meeting with one of our team, at your place or ours.
We can't wait to hear your ideas!
Disclaimer: The price is an indication of the build cost only and includes land. It should be used as a rough guide. Refer to our Pricing page for more information. Images are artist's impression only. Images and photographs on this website may depict fixtures, finishes and features either not supplied by Sentinel Homes or not included in any price stated. These items include swimming pools, pool decks, fences, landscaping - including planter boxes, retaining walls, water features, pergolas, screens and decorative landscaping items such as fencing and outdoor kitchens and barbeques. For detailed home pricing, please talk to a new homes consultant.