Twin Parks

-

181

m2

Enjoy this beautifully designed contemporary home with 4 bedrooms including a large master bedroom with ensuite and walk-in wardrobe. Fourth bedroom can easily be converted into a study. Open plan living area with stylish kitchen, lounge and dining area. Great double garage and patio area.

The look & feel of your new home is completely customisable, so the options are endless! Just to give you an idea, here are some concepts we quite like for this plan.

Measurements

Total Area

181

m2

House Area

148

m2

Garage Area

33

m2

House length

16

m

House width

15

m

Min Block width*

...

m

Min Block depth*

...

m

Master Suite

3.7 x 3.4

m

Bedroom 2

3 x 3

m

Bedroom 3

3 x 3

m

Bedroom 4

3 x 3

m

Bedroom 5

m

Bedroom 6

m

Garage

m

Price Guide

This price is as per our standard specification, with a simple hip roof design. not necessarily as pictured here. It's also based on a flat section with services close by, and should only be used as a rough guide. As each section is different please contact us for a more accurate price or refer to our pricing page on our website for more info.
*Minimum block width and depth are based on a standard calculation and may be different in your area.

Price is for single unit only. Please enquire for multi-unit pricing.

4

3

2

2

Twin Parks

-

181

m2

Standard

(two homes in one)

Enjoy this beautifully designed contemporary home with 4 bedrooms including a large master bedroom with ensuite and walk-in wardrobe. Fourth bedroom can easily be converted into a study. Open plan living area with stylish kitchen, lounge and dining area. Great double garage and patio area.

Download the

Twin Parks

Brochure

Enter your details below, and we'll send you the brochure, packed with high quality images and information about this plan.

Thank you! Your submission has been received!
Oops! Something went wrong while submitting the form.
Twin Parks - Gable
Twin Parks - Hip
Twin Parks - Mono
Back

Twin Parks

-

181

m2

Standard

4

3

2

2

PRICE ESTIMATE
Learn more about pricing

Price is for single unit only. Please enquire for multi-unit pricing.

MEASUREMENTS

Total area

181

m2

House area

181

m2

Garage area

33

m2

House length

16

m

House width

15

m

Master Suite

3.7 x 3.4

m

Bedroom 2

3 x 3

m

Bedroom 3

3 x 3

m

Bedroom 4

3 x 3

m

Bedroom 5

m

Bedroom 6

m

Garage

m

Min block width

...

m

Min block depth

...

m

*Minimum block width and depth are based on a standard calculation and may be different in your area.

DESCRIPTION

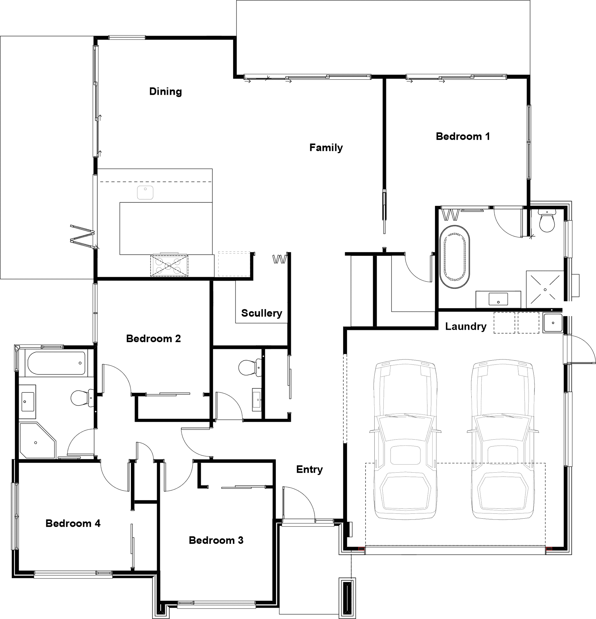
This design is all about allowing room for more. A wonderfully designed contemporary single level home. Two bedrooms off a kids retreat, with another bedroom located along the hall opening into a spacious central living area. With open-plan kitchen with island bench top, dining area and family room leading to a further lounge, create the perfect family home, plus a master bedroom with ensuite. A double garage is the finishing touch to a great family investment. On the other side, a completely separate two bedroom minor dwelling.

Check out the floor plan

If you like the look of this floor plan, add it to your favourites - just click the little heart on the right. Everything can be customised to suit you. Our architectural designers listen to your ideas then work with you to design a custom home that fits your family perfectly.

Total area

181

m2

House area

148

m2

Garage area

33

m2

House length

16

m

House width

15

m

More Measurements

Master Suite

3.7 x 3.4

m

Bedroom 2

3 x 3

m

Bedroom 3

3 x 3

m

Bedroom 4

3 x 3

m

Bedroom 5

m

Bedroom 6

m

Garage

m

Min block width*

...

m

Min block depth*

...

m

*Minimum block width and depth are based on a standard calculation and may be different in your area.

Price Guide

Price is for single unit only. Please enquire for multi-unit pricing.

This price is as per our standard specification, with a simple hip roof design. not necessarily as pictured here. Find out more about our price guide.

3D
2D
mirror
mirror
PRINT
DOWNLOAD
DOWNLOAD

Enjoy this beautifully designed contemporary home with 4 bedrooms including a large master bedroom with ensuite and walk-in wardrobe. Fourth bedroom can easily be converted into a study. Open plan living area with stylish kitchen, lounge and dining area. Great double garage and patio area.

Approx min section length

16

m

Approx min section width

15

m

Did you know?

You no longer need to be an experienced property developer to subdivide and build on your land.

Find out if your property is suitable to develop or subdivide with a FREE on-site check with one of our subdivision experts.

Book a free site check
PRICE ESTIMATE
Learn more about pricing

Price is for single unit only. Please enquire for multi-unit pricing.

MEASUREMENTS

Total area

181

m2

House area

181

m2

Garage area

33

m2

House length

16

m

House width

15

m

Master Suite

3.7 x 3.4

m

Bedroom 2

3 x 3

m

Bedroom 3

3 x 3

m

Bedroom 4

3 x 3

m

Bedroom 5

m

Bedroom 6

m

Garage

m

Min block width

...

m

Min block depth

...

m

*Minimum block width and depth are based on a standard calculation and may be different in your area.

DESCRIPTION

This design is all about allowing room for more. A wonderfully designed contemporary single level home. Two bedrooms off a kids retreat, with another bedroom located along the hall opening into a spacious central living area. With open-plan kitchen with island bench top, dining area and family room leading to a further lounge, create the perfect family home, plus a master bedroom with ensuite. A double garage is the finishing touch to a great family investment. On the other side, a completely separate two bedroom minor dwelling.

3D
2D
mirror
mirror
PRINT
DOWNLOAD

Tags:

Enjoy this beautifully designed contemporary home with 4 bedrooms including a large master bedroom with ensuite and walk-in wardrobe. Fourth bedroom can easily be converted into a study. Open plan living area with stylish kitchen, lounge and dining area. Great double garage and patio area.

a few of our Subdivision success stories

Mix & Match with an
Architectural Designer

When you work with Sentinel, we won’t force you into a standard plan. Our clients often save a few ideas from the concept plans on our website, then work with our architectural designer to come up with a floor plan and style that fits their family perfectly.

ARRANGE A MEETING TODAY

Want to know more?

Call 0800 456 321 or drop us a note BELOW.

Thank you! Your submission has been received!
Oops! Something went wrong while submitting the form.

what's next?

Let’s get together for a free, no-pressure meeting with one of our team, at your place or ours.

We can't wait to hear your ideas!

Call 0800 456 321