
The look & feel of your new home is completely customisable, so the options are endless! Just to give you an idea, here are some concepts we quite like for this plan.
-Gable-WEB.jpg)
--Mono-WEB.jpg)
-Hip-WEB.jpg)


.png)
Total Area
330
m2
House Area
279
m2
Garage Area
51
m2
House length
15
m
House width
26
m
Min Block width*
...
m
Min Block depth*
...
m
Master Suite
4 x 5.6
m
Bedroom 2
3.5 x 3.8
m
Bedroom 3
3.5 x 3.8
m
Bedroom 4
3.5 x 3.8
m
Bedroom 5
3.5 x 3.8
m
Bedroom 6
m
Garage
8.5 x 6
m
This price is as per our standard specification, with a simple hip roof design. not necessarily as pictured here. It's also based on a flat section with services close by, and should only be used as a rough guide. As each section is different please contact us for a more accurate price or refer to our pricing page on our website for more info.
*Minimum block width and depth are based on a standard calculation and may be different in your area.
Price is for single unit only. Please enquire for multi-unit pricing.



Standard
(two homes in one)
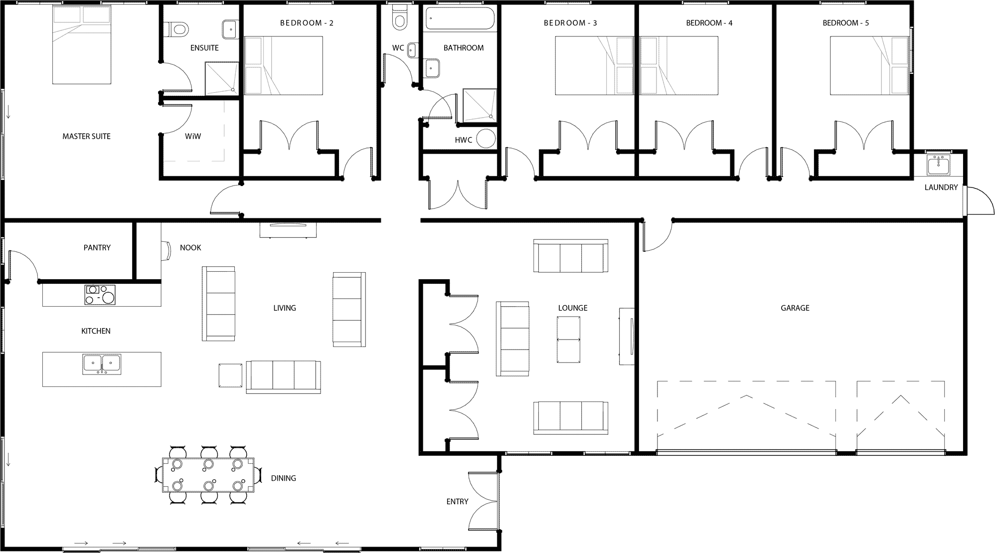
This family home features five generously sized bedrooms, a triple garage, and large open plan living and dining spaces, including a separate family lounge.

Location
Build Budget
Bedrooms
Two homes in one?
Features:
Standard
(two homes in one)
Total area
330
m2
House area
330
m2
Garage area
51
m2
House length
15
m
House width
26
m
Master Suite
4 x 5.6
m
Bedroom 2
3.5 x 3.8
m
Bedroom 3
3.5 x 3.8
m
Bedroom 4
3.5 x 3.8
m
Bedroom 5
3.5 x 3.8
m
Bedroom 6
m
Garage
8.5 x 6
m
Min block width
...
m
Min block depth
...
m
*Minimum block width and depth are based on a standard calculation and may be different in your area.
This design is all about allowing room for more. A wonderfully designed contemporary single level home. Two bedrooms off a kids retreat, with another bedroom located along the hall opening into a spacious central living area. With open-plan kitchen with island bench top, dining area and family room leading to a further lounge, create the perfect family home, plus a master bedroom with ensuite. A double garage is the finishing touch to a great family investment. On the other side, a completely separate two bedroom minor dwelling.
Maybe you just like part of it? Save it to your ideas list, then get in touch. Our architectural designers listen to your ideas then work with you to design a custom home that fits your family perfectly.
SAVE to IDEAS listSAVED to IDEAS listTotal area
330
m2
House area
279
m2
Garage area
51
m2
House length
15
m
House width
26
m
Master Suite
4 x 5.6
m
Bedroom 2
3.5 x 3.8
m
Bedroom 3
3.5 x 3.8
m
Bedroom 4
3.5 x 3.8
m
Bedroom 5
3.5 x 3.8
m
Bedroom 6
m
Garage
8.5 x 6
m
Min block width*
...
m
Min block depth*
...
m
*Minimum block width and depth are based on a standard calculation and may be different in your area.
Price is for single unit only. Please enquire for multi-unit pricing.
This price is as per our standard specification, with a simple hip roof design. not necessarily as pictured here. Find out more about our price guide.
This family home features five generously sized bedrooms, a triple garage, and large open plan living and dining spaces, including a separate family lounge.
When you work with Sentinel, we won’t force you into a standard plan. Our clients often save a few ideas from the concept plans on our website, then work with our architectural designer to come up with a floor plan and style that fits their family perfectly.
ARRANGE A MEETING TODAY
Let’s get together for a free, no-pressure meeting with one of our team, at your place or ours.
We can't wait to hear your ideas!