
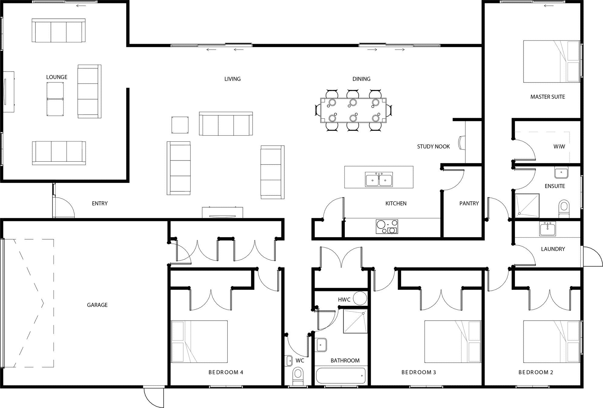
This generous family home provides larger than normal bedrooms, two lounges, and great indoor - outdoor flow. Entertainers will love the open plan kitchen and large dining area.
The look & feel of your new home is completely customisable, so the options are endless! Just to give you an idea, here are some concepts we quite like for this plan.
-Gable-WEB.jpg)
-MONO-WEB.jpg)
-HIP-WEB.jpg)


.png)
Total Area
280
m2
House Area
244
m2
Garage Area
36
m2
House length
22
m
House width
14
m
Min Block width*
...
m
Min Block depth*
...
m
Master Suite
3.6 x 4
m
Bedroom 2
3.6 x 4
m
Bedroom 3
4 x 3.6
m
Bedroom 4
4 x 3.6
m
Bedroom 5
m
Bedroom 6
m
Garage
6 x 6
m
This price is as per our standard specification, with a simple hip roof design. not necessarily as pictured here. It's also based on a flat section with services close by, and should only be used as a rough guide. As each section is different please contact us for a more accurate price or refer to our pricing page on our website for more info.
*Minimum block width and depth are based on a standard calculation and may be different in your area.
Price is for single unit only. Please enquire for multi-unit pricing.


-ISO.jpg)
Standard
(two homes in one)
This generous family home provides larger than normal bedrooms, two lounges, and great indoor - outdoor flow. Entertainers will love the open plan kitchen and large dining area.

Total area
280
m2
House area
280
m2
Garage area
36
m2
House length
22
m
House width
14
m
Master Suite
3.6 x 4
m
Bedroom 2
3.6 x 4
m
Bedroom 3
4 x 3.6
m
Bedroom 4
4 x 3.6
m
Bedroom 5
m
Bedroom 6
m
Garage
6 x 6
m
Min block width
...
m
Min block depth
...
m
*Minimum block width and depth are based on a standard calculation and may be different in your area.
This design is all about allowing room for more. A wonderfully designed contemporary single level home. Two bedrooms off a kids retreat, with another bedroom located along the hall opening into a spacious central living area. With open-plan kitchen with island bench top, dining area and family room leading to a further lounge, create the perfect family home, plus a master bedroom with ensuite. A double garage is the finishing touch to a great family investment. On the other side, a completely separate two bedroom minor dwelling.
If you like the look of this floor plan, add it to your favourites - just click the little heart on the right. Everything can be customised to suit you. Our architectural designers listen to your ideas then work with you to design a custom home that fits your family perfectly.
Total area
280
m2
House area
244
m2
Garage area
36
m2
House length
22
m
House width
14
m
Master Suite
3.6 x 4
m
Bedroom 2
3.6 x 4
m
Bedroom 3
4 x 3.6
m
Bedroom 4
4 x 3.6
m
Bedroom 5
m
Bedroom 6
m
Garage
6 x 6
m
Min block width*
...
m
Min block depth*
...
m
*Minimum block width and depth are based on a standard calculation and may be different in your area.
Price is for single unit only. Please enquire for multi-unit pricing.
This price is as per our standard specification, with a simple hip roof design. not necessarily as pictured here. Find out more about our price guide.
Approx min section length
22
m
Approx min section width
14
m
You no longer need to be an experienced property developer to subdivide and build on your land.
Find out if your property is suitable to develop or subdivide with a FREE on-site check with one of our subdivision experts.
Book a free site checkTotal area
280
m2
House area
280
m2
Garage area
36
m2
House length
22
m
House width
14
m
Master Suite
3.6 x 4
m
Bedroom 2
3.6 x 4
m
Bedroom 3
4 x 3.6
m
Bedroom 4
4 x 3.6
m
Bedroom 5
m
Bedroom 6
m
Garage
6 x 6
m
Min block width
...
m
Min block depth
...
m
*Minimum block width and depth are based on a standard calculation and may be different in your area.
This design is all about allowing room for more. A wonderfully designed contemporary single level home. Two bedrooms off a kids retreat, with another bedroom located along the hall opening into a spacious central living area. With open-plan kitchen with island bench top, dining area and family room leading to a further lounge, create the perfect family home, plus a master bedroom with ensuite. A double garage is the finishing touch to a great family investment. On the other side, a completely separate two bedroom minor dwelling.
This generous family home provides larger than normal bedrooms, two lounges, and great indoor - outdoor flow. Entertainers will love the open plan kitchen and large dining area.
When you work with Sentinel, we won’t force you into a standard plan. Our clients often save a few ideas from the concept plans on our website, then work with our architectural designer to come up with a floor plan and style that fits their family perfectly.
ARRANGE A MEETING TODAY
Let’s get together for a free, no-pressure meeting with one of our team, at your place or ours.
We can't wait to hear your ideas!