
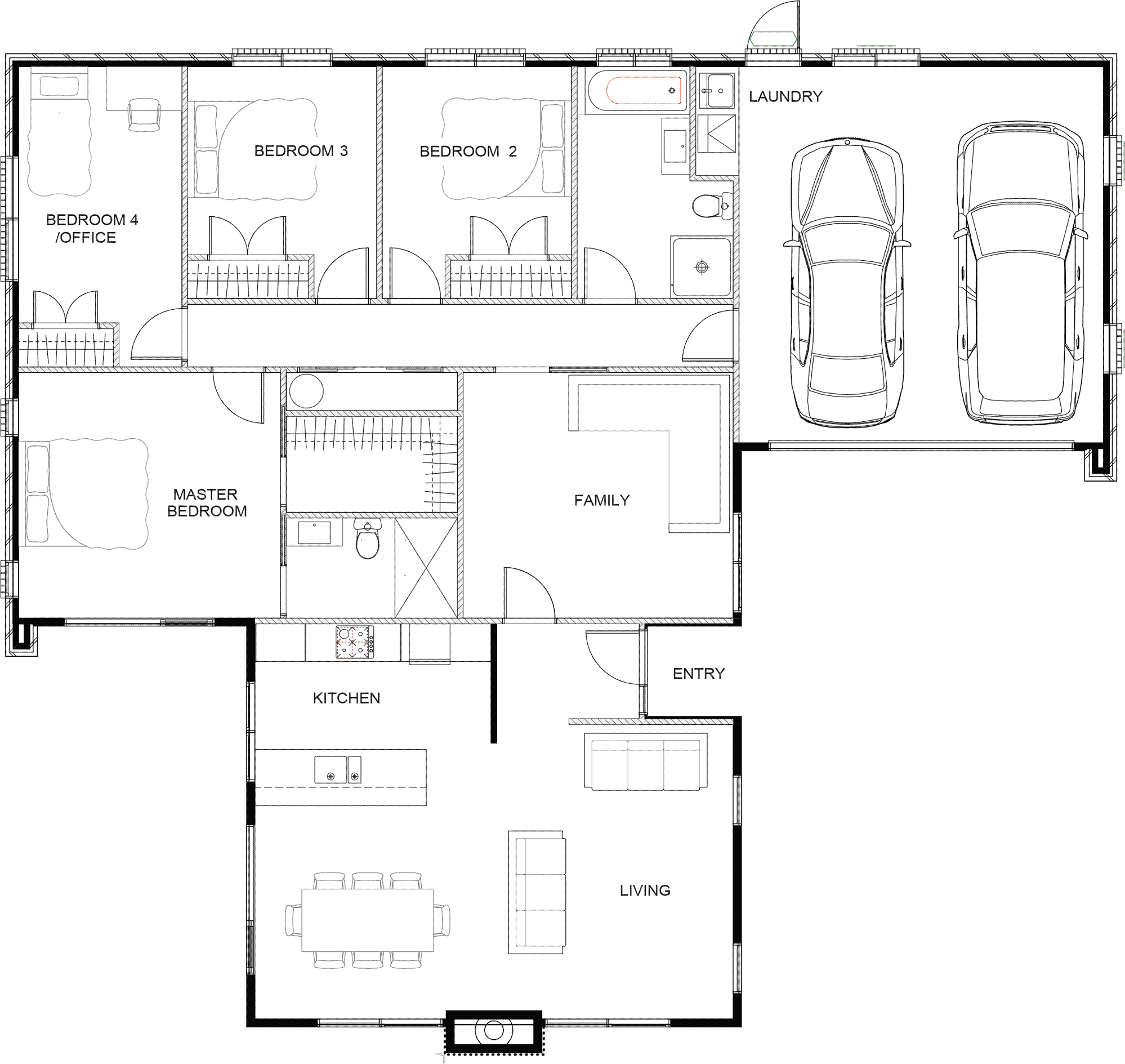
This is a four bedroom two bathroom family home with a fantastic open plan living area, and separate family room. An ensuite for the master bedroom, large walk-in wardrobe, and a cosy fireplace in the living area.
The look & feel of your new home is completely customisable, so the options are endless! Just to give you an idea, here are some concepts we quite like for this plan.






Total Area
195
m2
House Area
160
m2
Garage Area
35
m2
House length
16
m
House width
18
m
Min Block width*
...
m
Min Block depth*
...
m
Master Suite
4.1 x 3.9
m
Bedroom 2
3 x 3.6
m
Bedroom 3
3 x 3.6
m
Bedroom 4
2.6 x 4.8
m
Bedroom 5
m
Bedroom 6
m
Garage
5.8 x 6
m
This price is as per our standard specification, with a simple hip roof design. not necessarily as pictured here. It's also based on a flat section with services close by, and should only be used as a rough guide. As each section is different please contact us for a more accurate price or refer to our pricing page on our website for more info.
*Minimum block width and depth are based on a standard calculation and may be different in your area.
Price is for single unit only. Please enquire for multi-unit pricing.



Standard
(two homes in one)
This is a four bedroom two bathroom family home with a fantastic open plan living area, and separate family room. An ensuite for the master bedroom, large walk-in wardrobe, and a cosy fireplace in the living area.

Total area
195
m2
House area
195
m2
Garage area
35
m2
House length
16
m
House width
18
m
Master Suite
4.1 x 3.9
m
Bedroom 2
3 x 3.6
m
Bedroom 3
3 x 3.6
m
Bedroom 4
2.6 x 4.8
m
Bedroom 5
m
Bedroom 6
m
Garage
5.8 x 6
m
Min block width
...
m
Min block depth
...
m
*Minimum block width and depth are based on a standard calculation and may be different in your area.
This design is all about allowing room for more. A wonderfully designed contemporary single level home. Two bedrooms off a kids retreat, with another bedroom located along the hall opening into a spacious central living area. With open-plan kitchen with island bench top, dining area and family room leading to a further lounge, create the perfect family home, plus a master bedroom with ensuite. A double garage is the finishing touch to a great family investment. On the other side, a completely separate two bedroom minor dwelling.
If you like the look of this floor plan, add it to your favourites - just click the little heart on the right. Everything can be customised to suit you. Our architectural designers listen to your ideas then work with you to design a custom home that fits your family perfectly.
Total area
195
m2
House area
160
m2
Garage area
35
m2
House length
16
m
House width
18
m
Master Suite
4.1 x 3.9
m
Bedroom 2
3 x 3.6
m
Bedroom 3
3 x 3.6
m
Bedroom 4
2.6 x 4.8
m
Bedroom 5
m
Bedroom 6
m
Garage
5.8 x 6
m
Min block width*
...
m
Min block depth*
...
m
*Minimum block width and depth are based on a standard calculation and may be different in your area.
Price is for single unit only. Please enquire for multi-unit pricing.
This price is as per our standard specification, with a simple hip roof design. not necessarily as pictured here. Find out more about our price guide.
Approx min section length
16
m
Approx min section width
18
m
You no longer need to be an experienced property developer to subdivide and build on your land.
Find out if your property is suitable to develop or subdivide with a FREE on-site check with one of our subdivision experts.
Book a free site checkTotal area
195
m2
House area
195
m2
Garage area
35
m2
House length
16
m
House width
18
m
Master Suite
4.1 x 3.9
m
Bedroom 2
3 x 3.6
m
Bedroom 3
3 x 3.6
m
Bedroom 4
2.6 x 4.8
m
Bedroom 5
m
Bedroom 6
m
Garage
5.8 x 6
m
Min block width
...
m
Min block depth
...
m
*Minimum block width and depth are based on a standard calculation and may be different in your area.
This design is all about allowing room for more. A wonderfully designed contemporary single level home. Two bedrooms off a kids retreat, with another bedroom located along the hall opening into a spacious central living area. With open-plan kitchen with island bench top, dining area and family room leading to a further lounge, create the perfect family home, plus a master bedroom with ensuite. A double garage is the finishing touch to a great family investment. On the other side, a completely separate two bedroom minor dwelling.
This is a four bedroom two bathroom family home with a fantastic open plan living area, and separate family room. An ensuite for the master bedroom, large walk-in wardrobe, and a cosy fireplace in the living area.
When you work with Sentinel, we won’t force you into a standard plan. Our clients often save a few ideas from the concept plans on our website, then work with our architectural designer to come up with a floor plan and style that fits their family perfectly.
ARRANGE A MEETING TODAY
Let’s get together for a free, no-pressure meeting with one of our team, at your place or ours.
We can't wait to hear your ideas!