


Want to customise, or have your own designs? No problem, talk to us about pricing a new plan for this package deal.
North facing flat section. Option to build concept plan as displayed for $935,000 or design your own dream home to suit your needs and budget. With title issued, why wait, call us today and we can start building your home.
Double glazing
Generous electrical fit out, LED lighting, alarm system
All flooring, incl. timber laminate, tiles & carpet
Ensuite & Walk in Wardrobe
Master Builders 10 year Guarantee
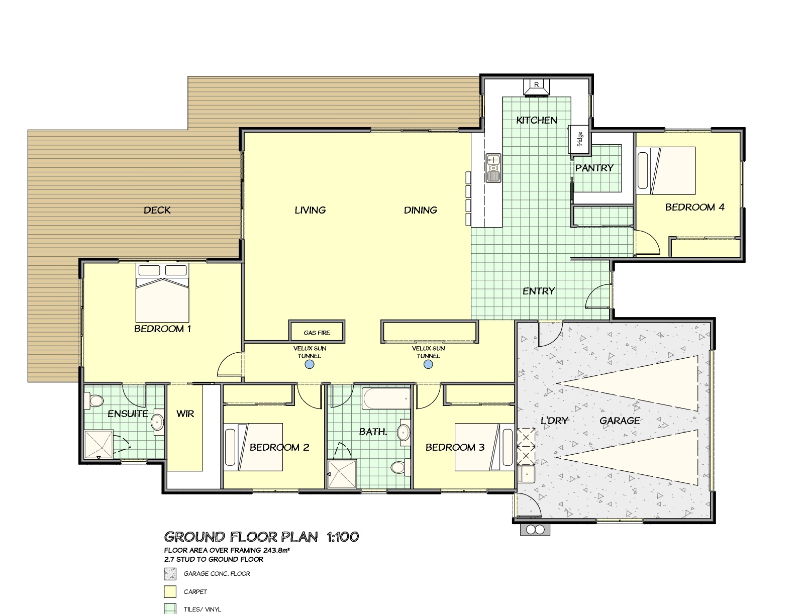
Office or 4th Bedroom
Building and resource consent fees
NO SURPRISES is part of our promise
Custom designed kitchen
Double garage
Price shown includes house and land, but is subject to terms, conditions and excludes earthworks costs unless otherwise stated. Images and photos are examples only.

Want to customise, or have your own designs?
No problem, talk to us about pricing a new plan for this package deal
Want to customise, or have your own designs? No problem! Talk to us about pricing a new plan for this package deal.
Price
$935,000
Land area (sqm)
634
Building area (sqm)
244
Bedrooms
4
Bathrooms
2
Garage (cars)
2
Ensuite
North facing flat section. Option to build concept plan as displayed for $935,000 or design your own dream home to suit your needs and budget. With title issued, why wait, call us today and we can start building your home.
Double glazing
Generous electrical fit out, LED lighting, alarm system
All flooring, incl. timber laminate, tiles & carpet
Ensuite & Walk in Wardrobe
Master Builders 10 year Guarantee
Office or 4th Bedroom
Building and resource consent fees
NO SURPRISES is part of our promise
Custom designed kitchen
Double garage
Price shown includes house and land, but is subject to terms, conditions and excludes earthworks costs unless otherwise stated. Images and photos are examples only.
Reference #
SH0134
Anna O'Toole
021706612Let’s get together for a free, no-pressure meeting with one of our team, at your place or ours.
We can't wait to hear your ideas!