


Want to customise, or have your own designs? No problem, talk to us about pricing a new plan for this package deal.
This property is close to town and main arterials, and this design is well thought out. - Have your own comfortable space along with a fabulous income opportunity. Images are only an indication of what can be built for the package price and is subject to final site preparation costs. A full design service also available.
Double glazing
Fully insulated exceeding code requirements
Custom designed kitchen with granite or engineered stone bench tops
Generous electrical fit out, LED lighting, alarm system
High quality fittings and fixtures
All flooring, incl. timber laminate, tiles & carpet
Concrete Driveway
Building and resource consent fees
Master Builders 10 year Guarantee
F&P or BOSCH Appliances
Price shown includes house and land, but is subject to terms, conditions and excludes earthworks costs unless otherwise stated. Images and photos are examples only.
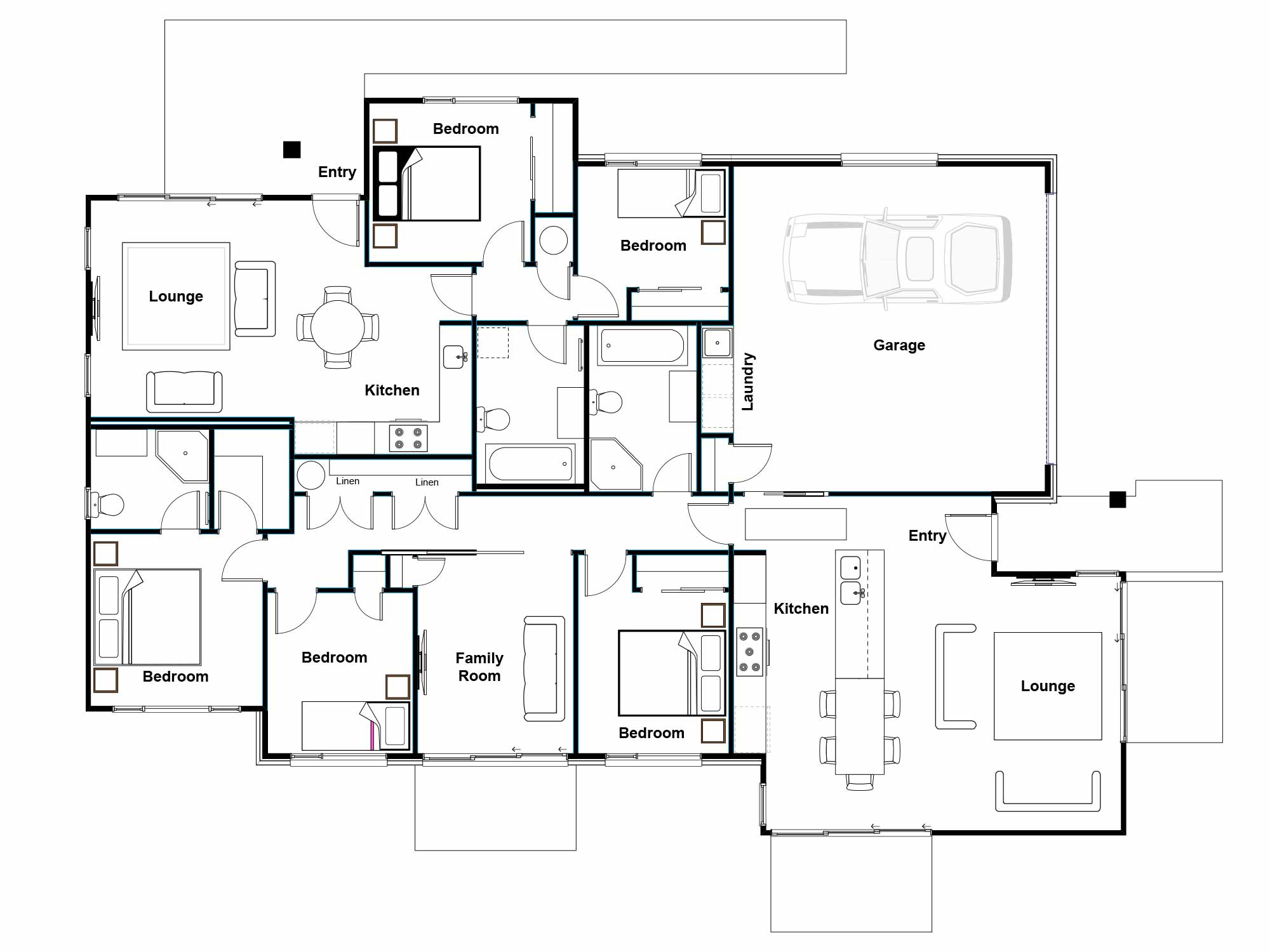
This property is close to the town of Warkworth, local schools and the main arterials. The design is all about allowing room for more. Have your own comfortable space along with a fabulous income opportunity. To one side, the home enjoys an open plan kitchen, dining, living area. A double garage, four bedrooms, and two bathrooms complete this wing. On the other side with completely separate access, a home with an open plan kitchen, dining living room, with two bedrooms and a bathroom.
These images are only an indication of what can be built on this site for the package price and is subject to final site preparation costs. A full custom design service is also available.

Want to customise, or have your own designs?
No problem, talk to us about pricing a new plan for this package deal
Want to customise, or have your own designs? No problem! Talk to us about pricing a new plan for this package deal.
Price
$1,048,000
Land area (sqm)
670
Building area (sqm)
214
Bedrooms
5
Bathrooms
3
Garage (cars)
2
Ensuite
This property is close to the town of Warkworth, local schools and the main arterials. The design is all about allowing room for more. Have your own comfortable space along with a fabulous income opportunity. To one side, the home enjoys an open plan kitchen, dining, living area. A double garage, four bedrooms, and two bathrooms complete this wing. On the other side with completely separate access, a home with an open plan kitchen, dining living room, with two bedrooms and a bathroom.
These images are only an indication of what can be built on this site for the package price and is subject to final site preparation costs. A full custom design service is also available.
This property is close to town and main arterials, and this design is well thought out. - Have your own comfortable space along with a fabulous income opportunity. Images are only an indication of what can be built for the package price and is subject to final site preparation costs. A full design service also available.
Double glazing
Fully insulated exceeding code requirements
Custom designed kitchen with granite or engineered stone bench tops
Generous electrical fit out, LED lighting, alarm system
High quality fittings and fixtures
All flooring, incl. timber laminate, tiles & carpet
Concrete Driveway
Building and resource consent fees
Master Builders 10 year Guarantee
F&P or BOSCH Appliances
Price shown includes house and land, but is subject to terms, conditions and excludes earthworks costs unless otherwise stated. Images and photos are examples only.
Reference #
SH0027
Let’s get together for a free, no-pressure meeting with one of our team, at your place or ours.
We can't wait to hear your ideas!