


Want to customise, or have your own designs? No problem, talk to us about pricing a new plan for this package deal.
Have your own comfortable space along with a fabulous income opportunity with this stunning Colorado idyllic two storey home. Situated in a quiet cul de sac, on a sunny elevated site with spectacular views, highly desirable schools, parklands and shops close by. The perfect mix of design excellence & optional benefits of income or room for extended family. Your design or ours. Price indication only, section Auctioned 9th July 2020. Act quickly!
Custom designed kitchen
Master with Ensuite
Retreat Space
Double garage
Open plan living
Sunny, elevated section
Quality flooring throughout
Master Builders 10 year Guarantee
Concrete Driveway
High quality fittings and fixtures
Price shown includes house and land, but is subject to terms, conditions and excludes earthworks costs unless otherwise stated. Images and photos are examples only.

Want to customise, or have your own designs?
No problem, talk to us about pricing a new plan for this package deal
Want to customise, or have your own designs? No problem! Talk to us about pricing a new plan for this package deal.
Price
$1,100,000
Land area (sqm)
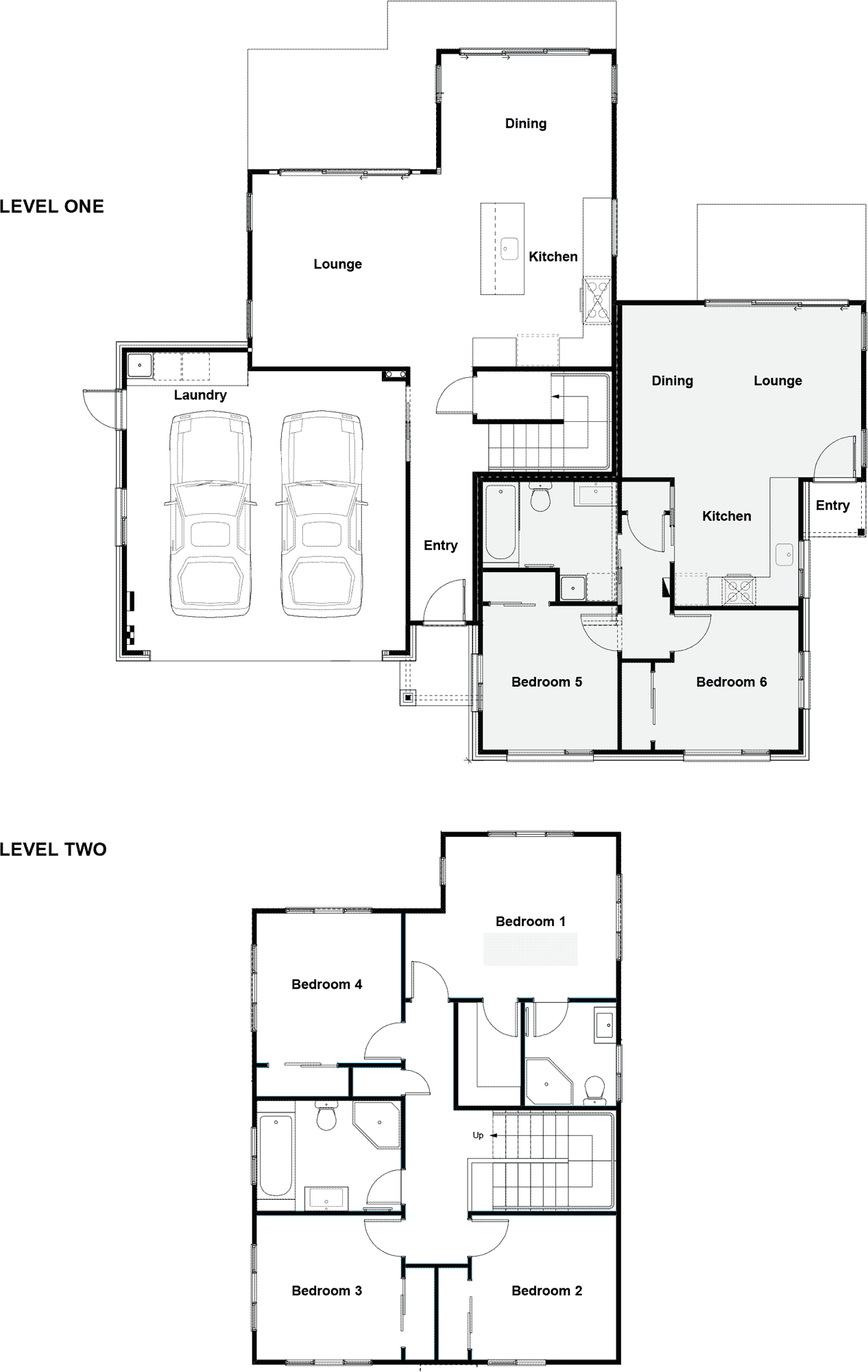
930
Building area (sqm)
217
Bedrooms
6
Bathrooms
3
Garage (cars)
2
Ensuite
Have your own comfortable space along with a fabulous income opportunity with this stunning Colorado idyllic two storey home. Situated in a quiet cul de sac, on a sunny elevated site with spectacular views, highly desirable schools, parklands and shops close by. The perfect mix of design excellence & optional benefits of income or room for extended family. Your design or ours. Price indication only, section Auctioned 9th July 2020. Act quickly!
Custom designed kitchen
Master with Ensuite
Retreat Space
Double garage
Open plan living
Sunny, elevated section
Quality flooring throughout
Master Builders 10 year Guarantee
Concrete Driveway
High quality fittings and fixtures
Price shown includes house and land, but is subject to terms, conditions and excludes earthworks costs unless otherwise stated. Images and photos are examples only.
Reference #
SH0156
Shane Raymond
027 570 0908Let’s get together for a free, no-pressure meeting with one of our team, at your place or ours.
We can't wait to hear your ideas!