


Want to customise, or have your own designs? No problem, talk to us about pricing a new plan for this package deal.
Architecturally-designed to this highest standard, this luxury home has excellent indoor/outdoor flow for extended family living and entertaining with stunning views of the reserve. With easy access to commuter routes, highly desirable Otumoetai is a popular place to live and close to the CBD. Extras includes heat pump, gas fire, feature exterior stone, tiled ensuite shower, site works, retaining and hardwood decking. Your design or ours.
Building Consent
Custom designed kitchen
Driveway, Patios and Fencing
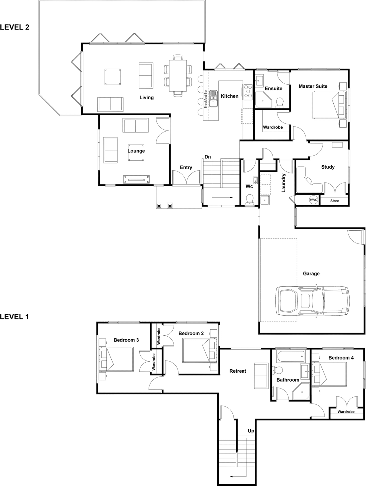
4 Bedrooms, 2 Bathrooms
Engineered stone benchtop
Over height ceilings and doors to provide the WOW factor of space and luxury
Ensuite & Walk in Wardrobe
Building and resource consent fees
High quality fittings and fixtures
Fully insulated exceeding code requirements
Price shown includes house and land, but is subject to terms, conditions and excludes earthworks costs unless otherwise stated. Images and photos are examples only.

Want to customise, or have your own designs?
No problem, talk to us about pricing a new plan for this package deal
Want to customise, or have your own designs? No problem! Talk to us about pricing a new plan for this package deal.
Price
$1,369,540
Land area (sqm)
680
Building area (sqm)
236
Bedrooms
4
Bathrooms
2
Garage (cars)
2
Ensuite
Architecturally-designed to this highest standard, this luxury home has excellent indoor/outdoor flow for extended family living and entertaining with stunning views of the reserve. With easy access to commuter routes, highly desirable Otumoetai is a popular place to live and close to the CBD. Extras includes heat pump, gas fire, feature exterior stone, tiled ensuite shower, site works, retaining and hardwood decking. Your design or ours.
Building Consent
Custom designed kitchen
Driveway, Patios and Fencing
4 Bedrooms, 2 Bathrooms
Engineered stone benchtop
Over height ceilings and doors to provide the WOW factor of space and luxury
Ensuite & Walk in Wardrobe
Building and resource consent fees
High quality fittings and fixtures
Fully insulated exceeding code requirements
Price shown includes house and land, but is subject to terms, conditions and excludes earthworks costs unless otherwise stated. Images and photos are examples only.
Reference #
SH0205
Shane Raymond
027 570 0908Let’s get together for a free, no-pressure meeting with one of our team, at your place or ours.
We can't wait to hear your ideas!